Cellulare 347/98.72.376
San Carlo C.se - Strada San Giovanni
Ville di nuova realizzazione, libere su tre e quattro lati. Tutte le ville sono realizzate in Bioedilizia con tecnologia Xlam: quasi total green! Le abitazioni si dispongono su due livelli e sono composte da: Piano Terra_ ingresso living in ampio soggiorno, cucina abitabile a vista sullo stesso (volendo separabile dal soggiorno), ampio bagno, locale lavanderia e ripostiglio; Piano Primo_ zona notte a scelta tra due o tre camere da letto, cabina armadi, bagno. Ad impreziosire il piano sono presenti balconi e terrazzi. Di impatto le travi a viste decorate in colore bianco! Box auto con sezionale automatizzato. Giardino privato di circa 300 mq. Possibilità personalizzazione degli ambienti in disposizione dei locali e finiture grazie ad un ricco capitolato! Ventilazione meccanica controllata! Riscaldamento a pavimento servito da pompa di calore! Infissi esterni in pvc con triplo vetro! Impianto fotovoltaico! Predisposizione antifurto! Predisposizione condizionamento!
Richiesta: 320.000,00 euro. Classe Energetica: A.
Copyright 2016 HF Immobiliare Tutti i diritti sono riservati. Tutti i marchi registrati e i diritti d'autore presenti in questo sito web appartengono ai rispettivi proprietari. P.Iva 00284288883
Clicca sulle seguenti immagini e scorri tra loro utilizzando i bottoni ai lati o sotto la stessa:



















Video:

Planimetria generale

Planimetria piano terra villa 2A

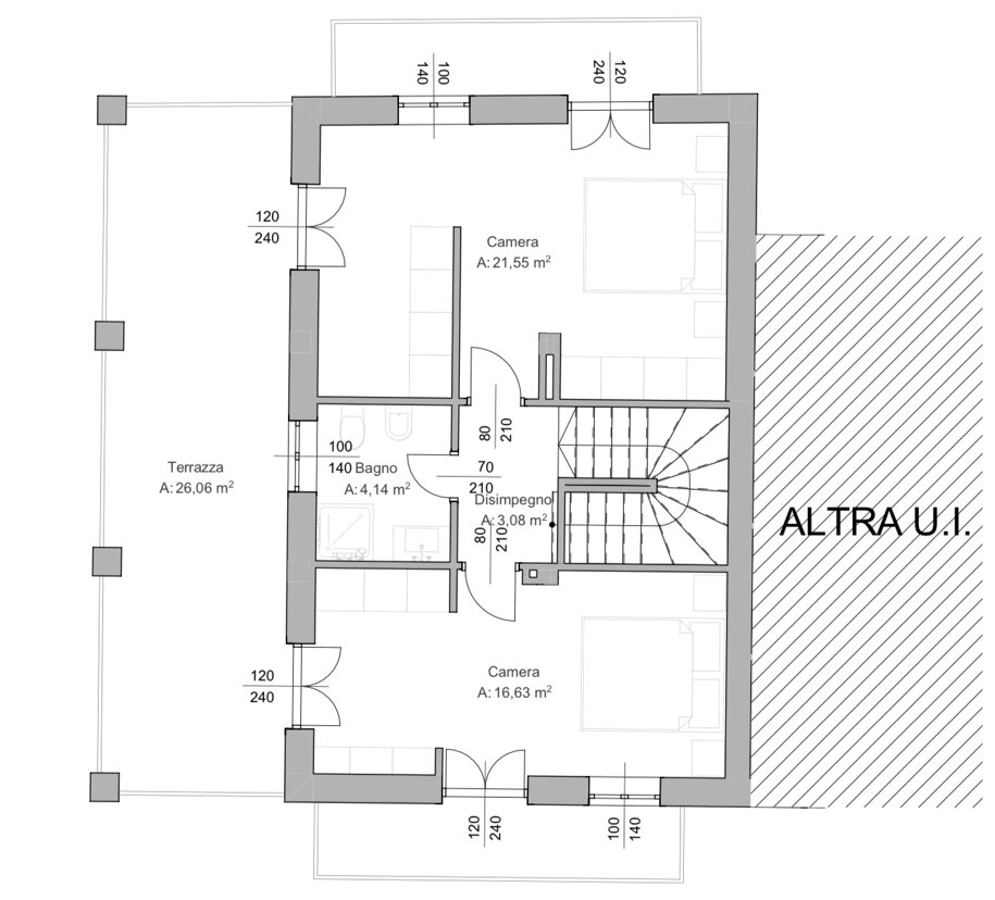
Planimetria piano primo villa 2A

Planimetria piano terra villa 2B

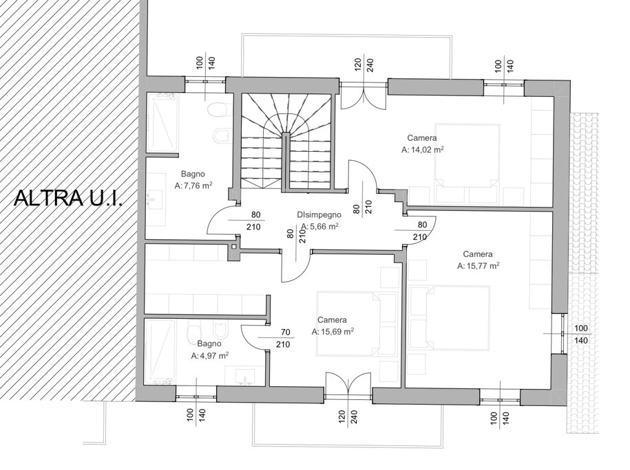
Planimetria piano primo villa 2B

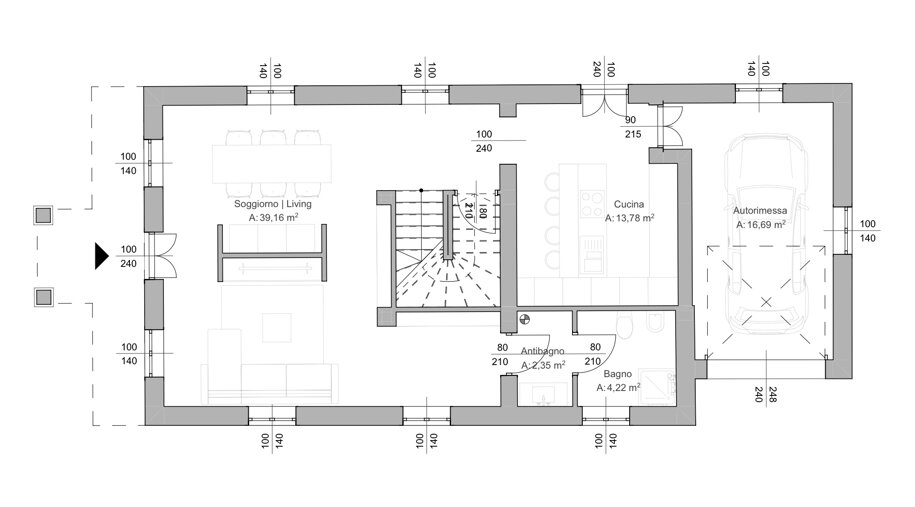
Planimetria piano terra villa 1

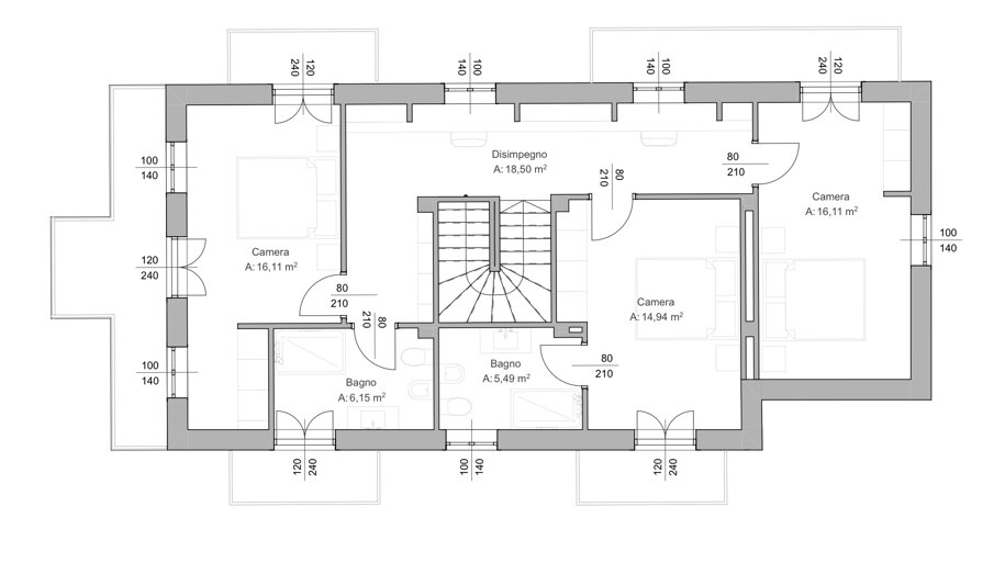
Planimetria piano primo villa 1